Specialist Suites

Premium Consulting Suites for Healthcare Professionals

Elevate your practice at Gardenview Medical Centre with fully managed consulting suites, integrated medical services, and unparalleled support, allowing you to focus on patient care while we handle the rest.

Integrated Medical Ecosystem
Comprehensive Medical Environment

Primary healthcare, retail pharmacy, radiology, pathology, and dialysis centre, fostering a strong referral base and integrated care.

Fully Managed Consulting Suites

Designed for specialists like General Surgeons, Orthopaedics, Dermatologists, Physicians, ENT, OB/GYNs, and Paediatricians.

Growth Opportunities

Upcoming 25-bed day hospital with three DOH-approved theatres, opening doors to procedure-based income.

Practice Support & Growth
Practice Management Services

Comprehensive support including staffing, reception, billing, claims processing, scheduling, and marketing.

Flexible Revenue Model

Sliding-scale management fees designed to align with your practiceโ€™s growth.

Professional Support

Backed by RH Managers with experience in 35 private hospitals and 17 primary healthcare centres, supported by RH Bophelo Ltd (JSE-listed).

Our Facility

Modern Healthcare Environment

Explore our state-of-the-art medical facility designed for optimal patient care and medical professional efficiency.

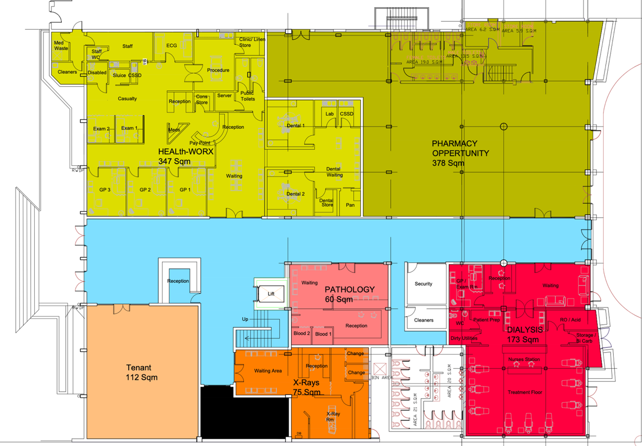
Ground Floor: Clinical Services

  • Primary Healthcare Centre with 12 consultation rooms

  • Radiology Department with digital X-ray and ultrasound

  • Pathology Laboratory with on-site processing

  • Retail Pharmacy with drive-through service

  • Spacious reception and comfortable waiting areas

Our ground floor houses essential clinical services for immediate patient care, diagnostic testing, and medication dispensing. The modern layout ensures efficient patient flow and minimal waiting times.

Ground Floor Reception Area
Ground Floor Reception

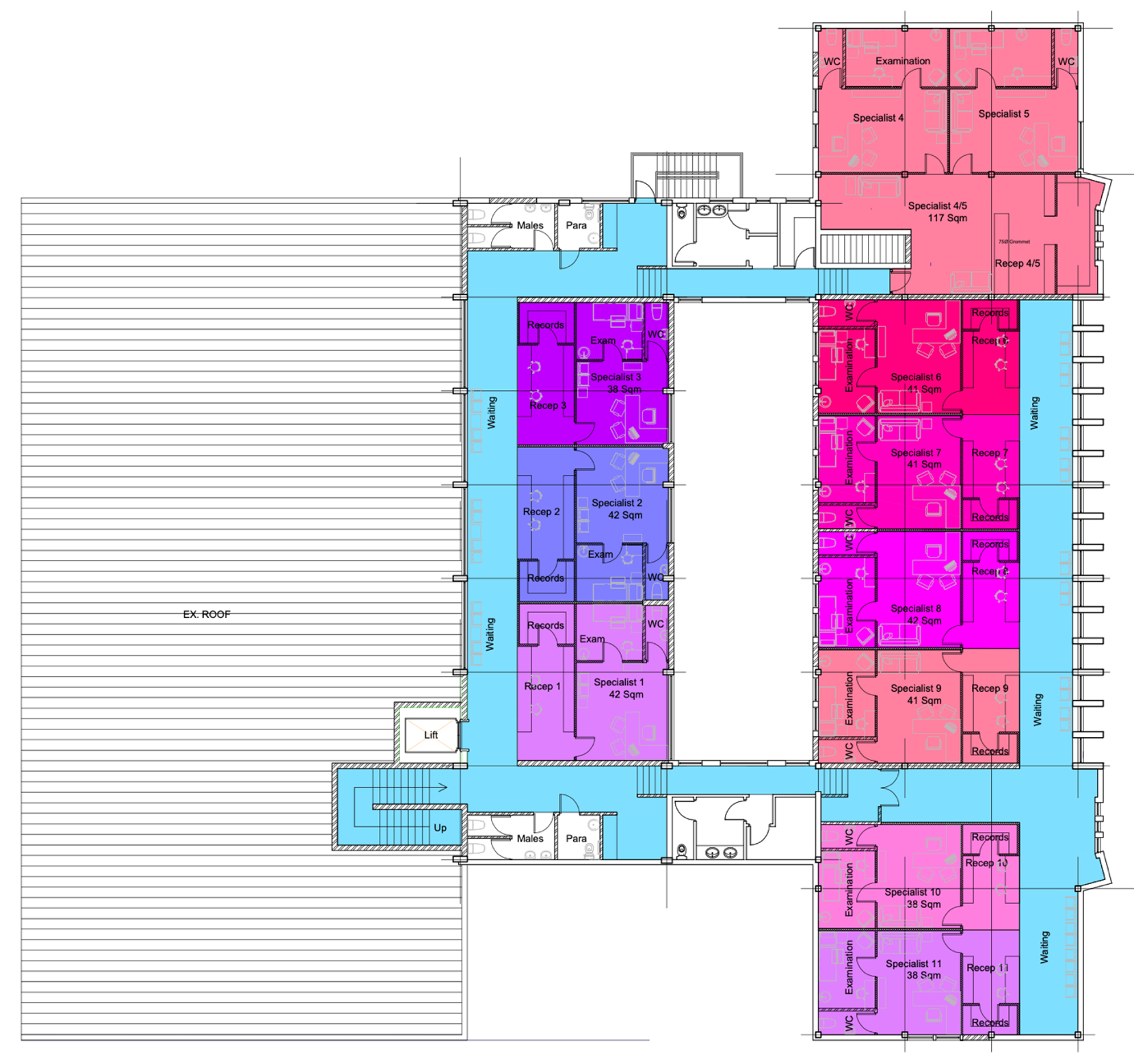
First Floor: Specialist Suites

  • Cardiology with ECG and stress testing

  • Dermatology with minor procedure room

  • Gastroenterology with endoscopy prep

  • Ophthalmology with vision testing

  • Additional specialist offices available

The first floor is dedicated to specialist consultations, offering modern suites for various medical specialties. This floor is designed to provide a professional environment for specialists while ensuring patient comfort and privacy.

Specialist Consultation Room
Specialist Consultation Room

Second Floor: Day Clinic (Coming Soon)

  • Two fully-equipped outpatient surgical suites

  • Post-anesthesia recovery area with monitoring

  • Specialized treatment rooms for procedures

  • Staff facilities including lounge and offices

Our upcoming day clinic on the second floor will offer outpatient surgical procedures and specialized treatments. The facility is being designed to meet the highest standards of medical care and patient comfort.

Day Clinic Rendering

Suite Leasing Opportunities

Join our growing community of healthcare providers at Gardenview Medical Centre. We offer premium medical suites with flexible leasing options, modern facilities, and a collaborative healthcare environment.

  • Prime location with high visibility

  • Ample parking for staff and patients

  • Built-in patient referral network

  • High-speed internet and modern amenities

  • 24/7 secure access

  • Professional healthcare environment

Available Medical Suite

Practice in Comfort, Grow with Confidence

Let Gardenview handle operations while you focus on your patients. Contact us to explore suite availability, pricing, and tailored support.

Enquire Now